gelijkvloerse woning met plat dak L198 - bungalow bouw

Ga naar de inhoud
Bungalow  L-199

Ontwerp van B. Walda




Bungalow Bouw Nederland ontwerp L 198 3 slaapkamers 2 badkamers
Bungalow Bouw Nederland ontwerp L 198 3 slaapkamers 2 badkamers
Bungalow Bouw Nederland ontwerp L 198 3 slaapkamers 2 badkamers
Bungalow Bouw Nederland ontwerp L 198 3 slaapkamers 2 badkamers
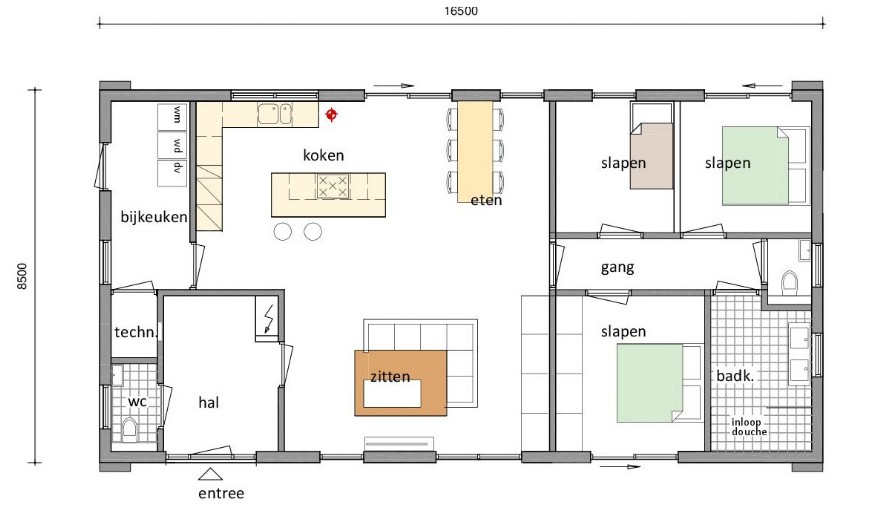
Onder ziet u een indeling van bovenstaand ontwerp. Het kan naar uw wens worden aangepast.
Bungalow Bouw Nederland ontwerp L 198 3 slaapkamers 2 badkamers
Bungalow Bouw Nederland ontwerp L 198 3 slaapkamers 2 badkamers

Kosten ontwerp.

Wilt u meer weten over prijzen, ontwerp en bouwmogeijkheden stuur een mail voor meer informatie?   Stuur een mail!


Terug naar de inhoud