Ontwerp Bungalow LK-136
onder ziet u 2 voorbeeld plattegronden
10 * 17 en 8 *14, deze afmetingen en indelingen zijn volledig aanpasbaar aan uw wensen





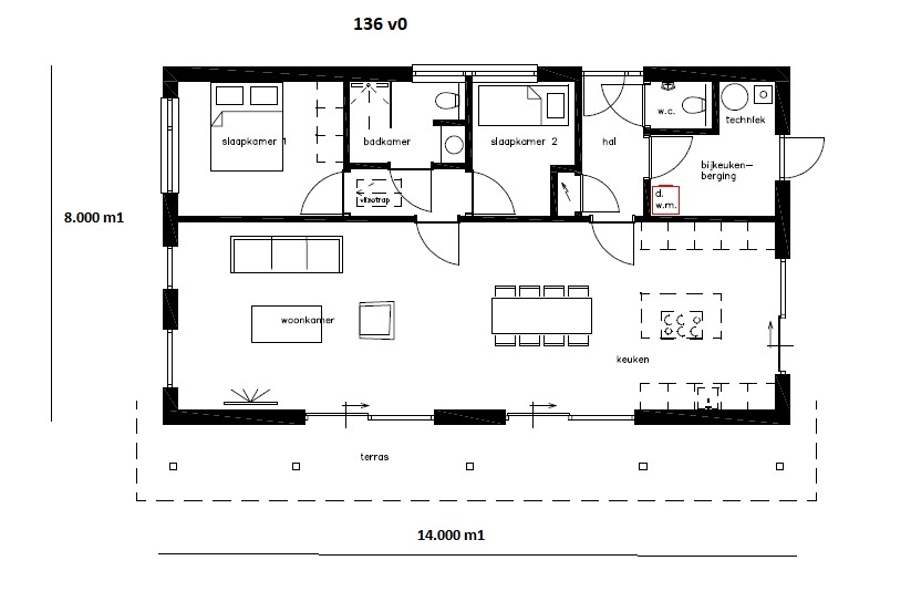
Ontwerp Bungalow LK-136
onder ziet u 2 voorbeeld plattegronden 10 * 17 en 8 *14
deze afmetingen en indelingen zijn volledig aanpasbaar aan uw wensen


Kosten ontwerp.
Wilt u meer weten over prijzen, ontwerp en bouwmogeijkheden stuur een mail voor meer informatie? Stuur een mail!