bungalow met plat dak L160 - bungalow bouw
Zoeken
×
Home
Ontwerpen
ontwerp aanpassen
verwarmen koelen
bouw en projecten
Hypotheek en afbouwgaranties
Bouwen met bouwpartners
Gevelbekleding
kozijnen
Contact
Nieuws
ATLANTA MBS
reviews
Jan Arends
×
Home
Ontwerpen
ontwerp aanpassen
verwarmen koelen
bouw en projecten
Hypotheek en afbouwgaranties
Bouwen met bouwpartners
Gevelbekleding
kozijnen
Contact
Nieuws
ATLANTA MBS
reviews
Jan Arends
Ga naar de inhoud
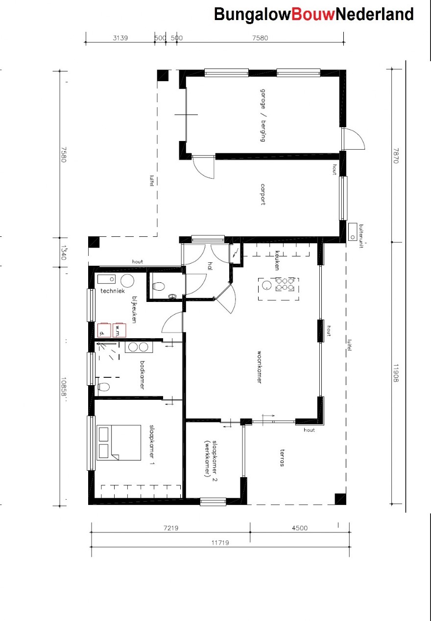
Ontwerp Bungalow L-160
Onder ziet u een indeling van bovenstaand ontwerp. Het kan naar uw wens worden aangepast
Kosten ontwerp.
Wilt u meer weten over prijzen, ontwerp en bouwmogeijkheden stuur een mail voor meer informatie?
Stuur
een mail!
terug naar het overzicht...
Terug naar de inhoud
Schakel JavaScript in om deze website te kunnen gebruiken.