kosten levensloopbestendige semi-bungalow H370 - bungalow bouw

Ga naar de inhoud
Ontwerp SEMI-Bungalow met verdieping H-370

H370 bungalowbouw nederland levensloopbestendig kleine verdieping dakterras ATLANTA MBS
H370 bungalowbouw nederland levensloopbestendig kleine verdieping dakterras ATLANTA MBS
H370 bungalowbouw nederland levensloopbestendig kleine verdieping dakterras ATLANTA MBS
H370 bungalowbouw nederland levensloopbestendig kleine verdieping dakterras ATLANTA MBS
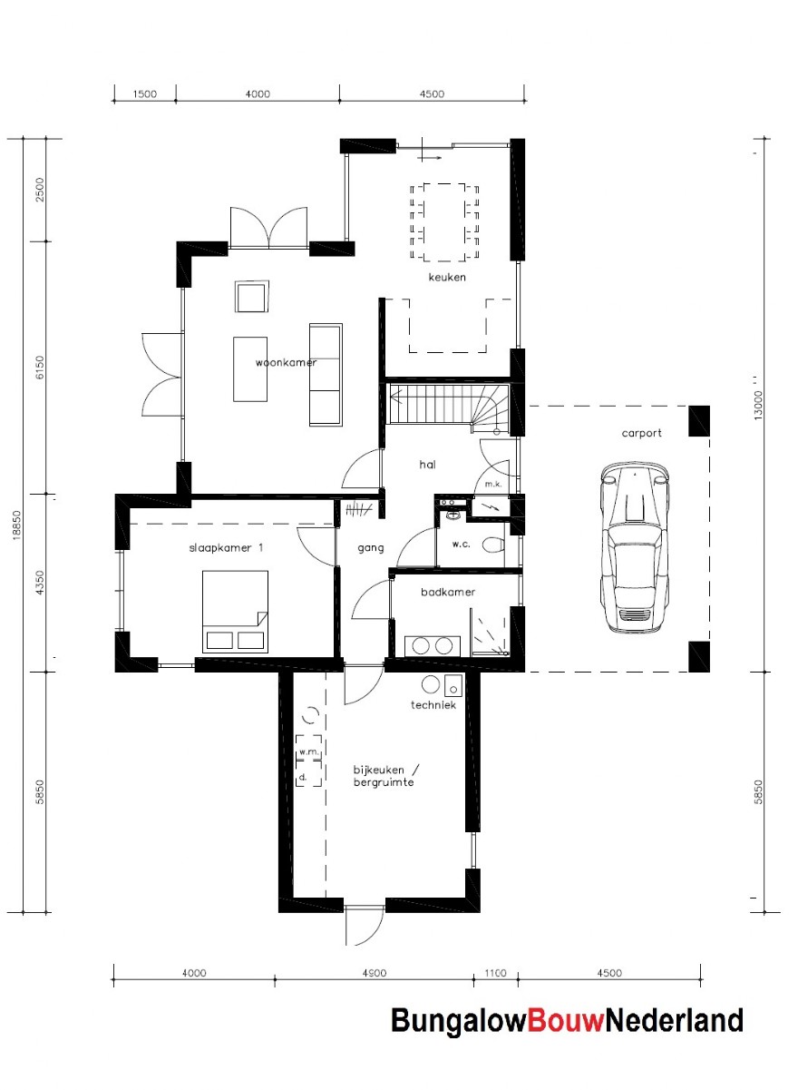
Onder ziet u een voorbeeld indeling van bovenstaand ontwerp. Het kan geheel naar uw wens worden aangepast.
H370 bungalowbouw nederland levensloopbestendig kleine verdieping dakterras ATLANTA MBS
H370 bungalowbouw nederland levensloopbestendig kleine verdieping dakterras ATLANTA MBS

Kosten ontwerp.

Wilt u meer weten over prijzen, ontwerp en bouwmogeijkheden stuur een mail voor meer informatie?   Stuur een mail!


Terug naar de inhoud