geschakelde woning PB 01-4 - bungalow bouw

Ga naar de inhoud
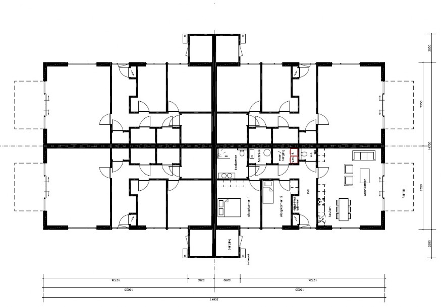
Geschakelde woningen: GS 01-4
2 of 4 geschakelde levensloopbestendige bungalows met plat dak.
BungalowBouw NEDERLAND GS 01-04  geschakelde bungalows
BungalowBouw NEDERLAND GS 01-04  geschakelde bungalows
BungalowBouw NEDERLAND GS 01-04  geschakelde bungalows
BungalowBouw NEDERLAND GS 01-04  geschakelde bungalows
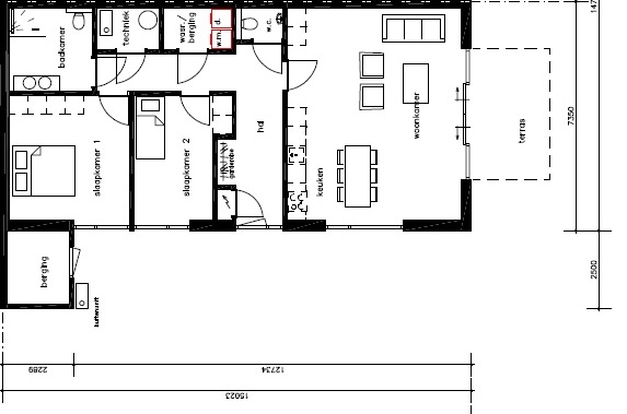
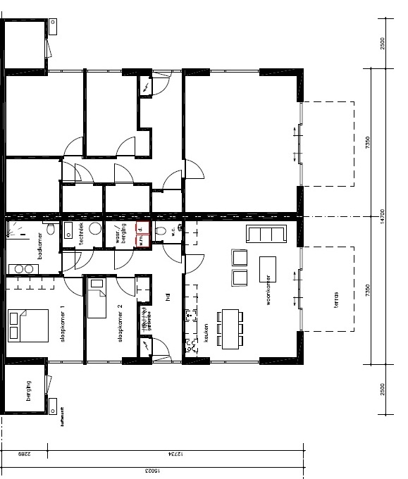
Onder ziet u een indeling van bovenstaand ontwerp. Het kan naar uw wens worden aangepast.
BungalowBouw NEDERLAND GS 01-04  geschakelde bungalows
BungalowBouw NEDERLAND GS 01-04  geschakelde bungalows
BungalowBouw NEDERLAND GS 01-04  geschakelde bungalows

Kosten ontwerp.

Wilt u meer weten over prijzen, ontwerp en bouwmogeijkheden stuur een mail voor meer informatie?   Stuur een mail!


Terug naar de inhoud